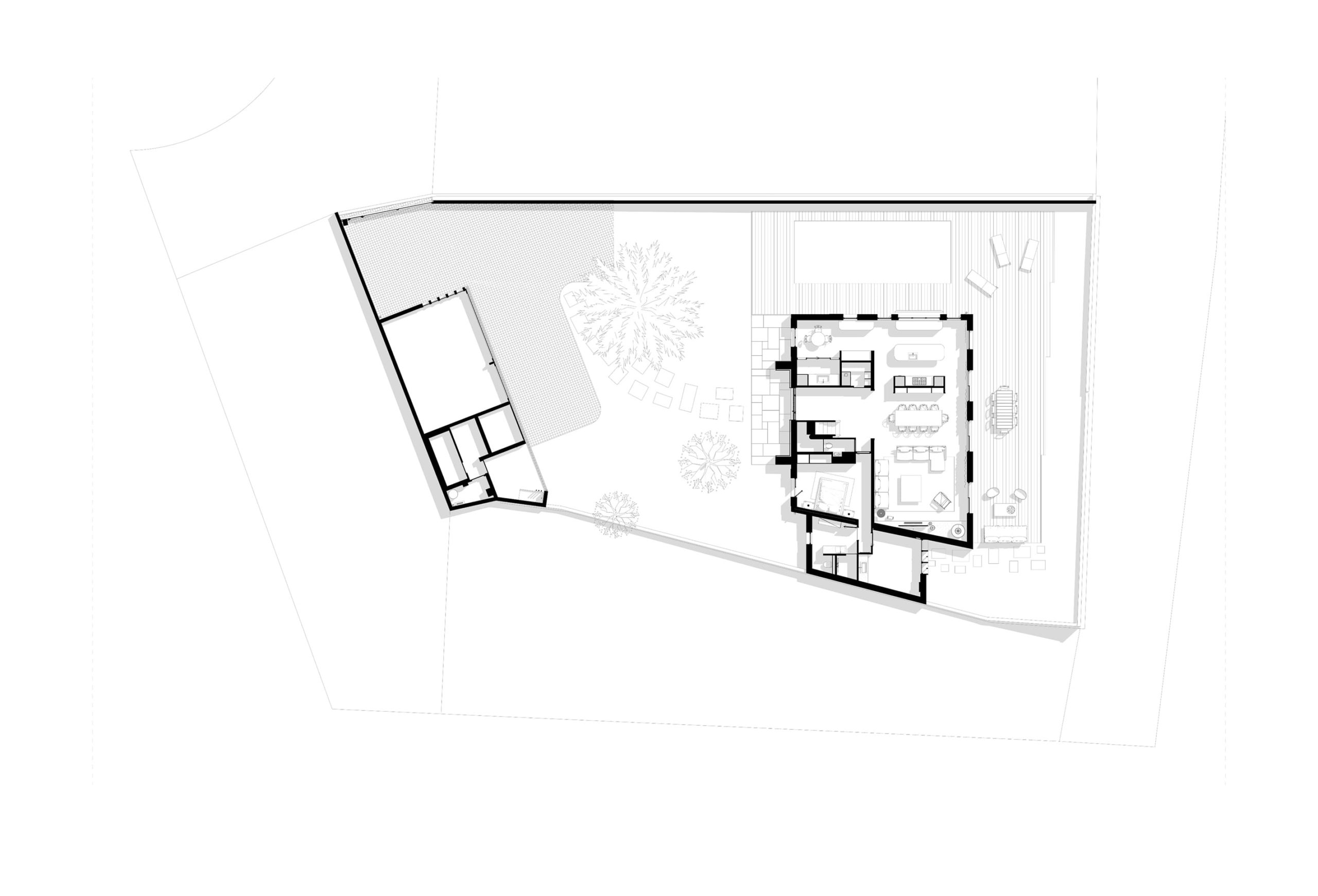
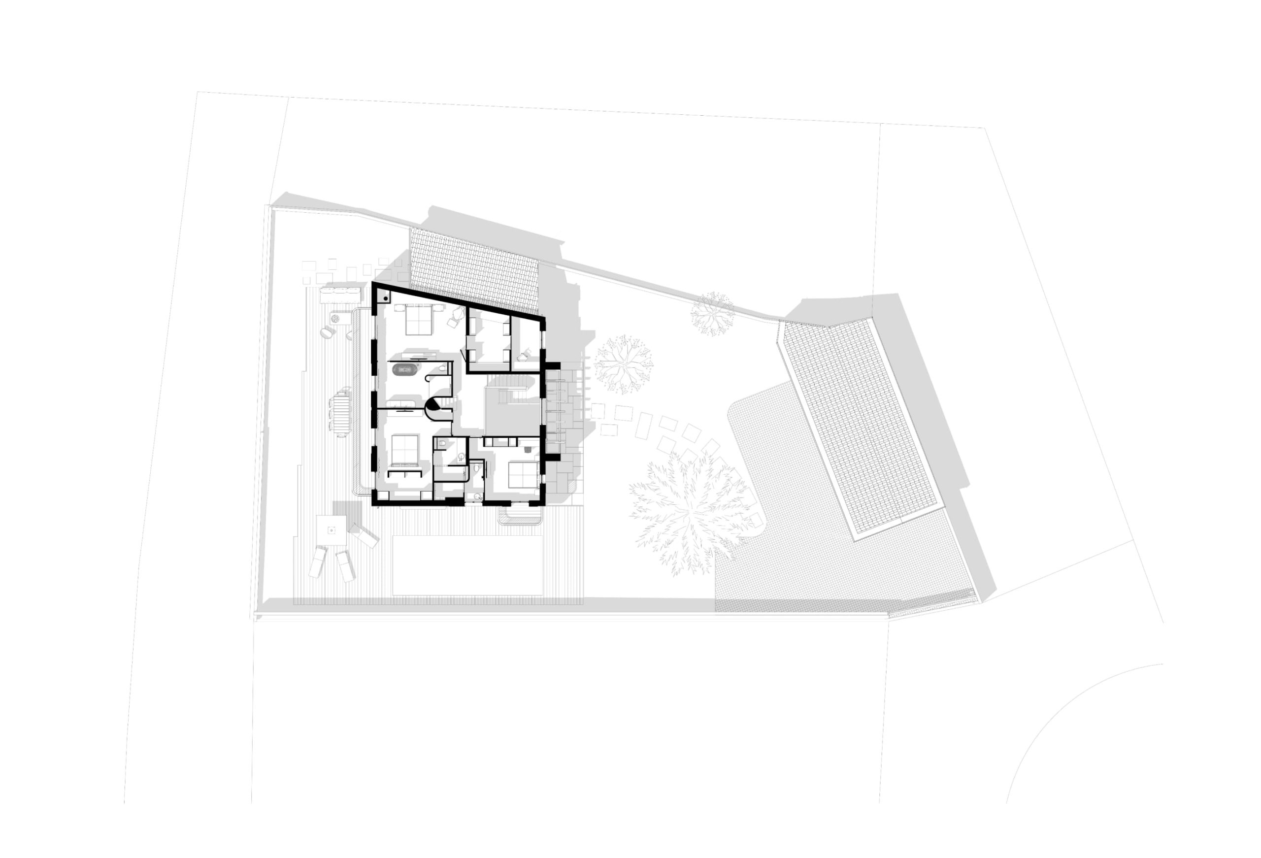
Maison L4

  • Descriptif :
  • Ravalement de façades d’une maison existante et réhabilitation d’un garage indépendant

  • Surface
  • 350 M2

  • Livré :
  • 2024