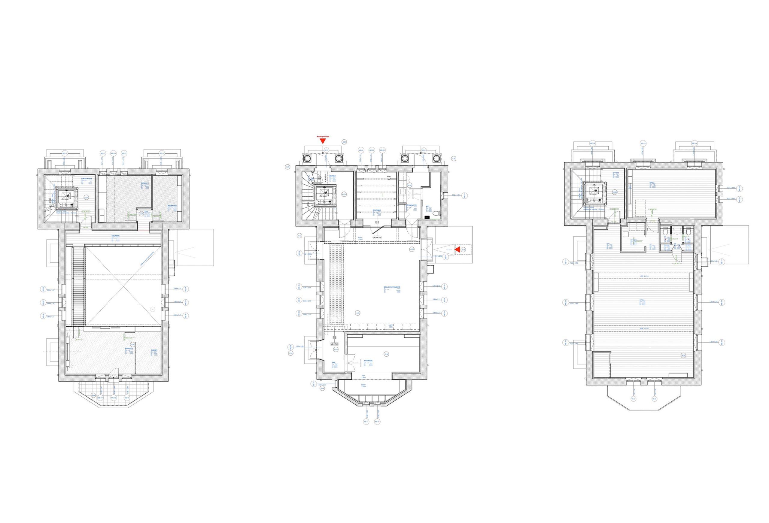
Villa Sion

  • Maitrise d'ouvrage
  • Privée

  • Descriptif :
  • //  Réhabilitation de la villa Sion à Biarritz

    Reconversion en siège social et pépinière d’entreprises  //

  • Surface
  • 450 m²

  • Coût approximatif :
  • NC

  • Livré :
  • 2022